7250 Franklin Avenue 506Los Angeles, CA 90046




Mortgage Calculator
Monthly Payment (Est.)
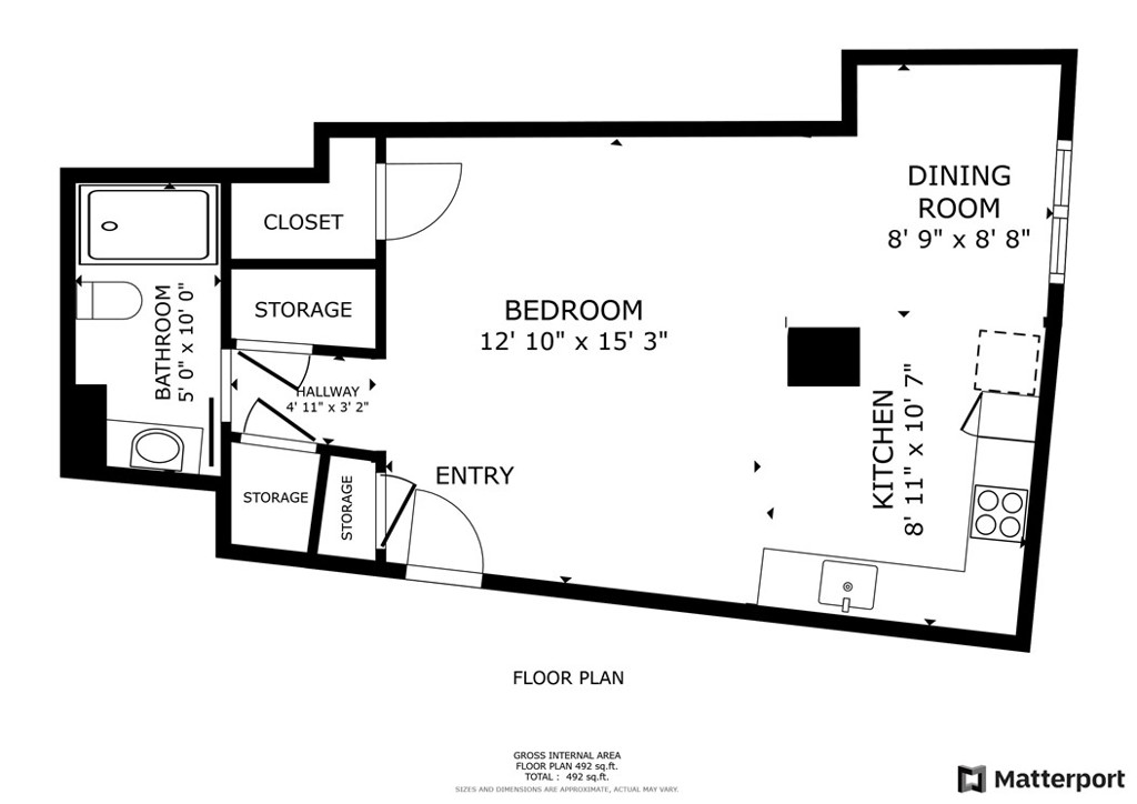
$1,734Discover a luxurious urban lifestyle in this stunning studio unit located on the 5th floor of the prestigious Franklin Towers, right in the heart of Hollywood. This corner unit offers privacy with no direct connecting neighbors and features modern upgrades that exude sophistication. Step inside to find rich wood flooring throughout the main living space, beautifully complemented by oversized windows that flood the unit with natural light. The kitchen is a chef's dream, equipped with European style cabinetry, top-of-the-line Miele appliances, an Asko dishwasher, and a built-in Sub Zero refrigerator. The stainless steel appliances add both style and functionality. The spacious walk-in closet provides ample storage with shelves and double rack hanging space, ensuring everything has its place. The spa-like bathroom is designed for relaxation, featuring a walk-in shower with a rainfall showerhead. Residents of Franklin Towers enjoy unparalleled amenities including 24-hour front desk service, valet parking, a rooftop gym, and a rooftop deck with breathtaking city views. Additional perks include a pool, club/lounge room, yoga studio, steam room, and sauna. Community laundry facilities are conveniently close to the unit. Embrace the vibrant Hollywood lifestyle with this exceptional studio unit that combines modern luxury with convenience and comfort. Don’t miss your chance to live in one of Los Angeles’s most sought-after addresses.
| 9 hours ago | Listing first seen on site | |
| 9 hours ago | Listing updated with changes from the MLS® |
This information is for your personal, non-commercial use and may not be used for any purpose other than to identify prospective properties you may be interested in purchasing. The display of MLS data is usually deemed reliable but is NOT guaranteed accurate by the MLS. Buyers are responsible for verifying the accuracy of all information and should investigate the data themselves or retain appropriate professionals. Information from sources other than the Listing Agent may have been included in the MLS data. Unless otherwise specified in writing, the Broker/Agent has not and will not verify any information obtained from other sources. The Broker/Agent providing the information contained herein may or may not have been the Listing and/or Selling Agent.

Did you know? You can invite friends and family to your search. They can join your search, rate and discuss listings with you.